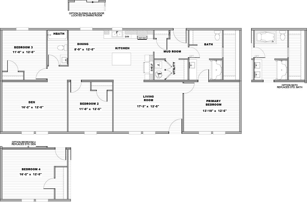
Haven

3 beds / 2 baths / 1,580 sq.ft. / 28x60

Virtual Tour

Copy Virtual Tour Link

*The home series, floor plans, photos, renderings, specifications, features, materials and availability shown will vary by retailer and state, and are subject to change without notice.